Teilsanierte 3-Zimmer-Wohnung mit großer Dachterrasse im Penthouse-Stil
Objektart
Adresse
Objektdaten
Informationen
Ausstattung
Details
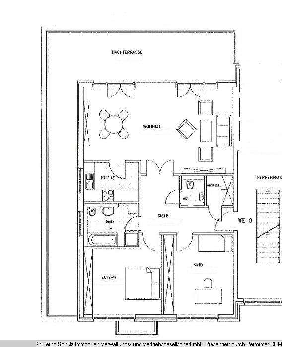
Hierbei handelt es sich um eine ruhig gelegene 3-Zimmer-Wohnung im 2.Obergeschoss einer gepflegten Wohnungseigentumsanlage. Das Haus wurde 1999 in massiver Bauweise mit einem rot-braunen Verblendmauerwerk errichtet. Im Bereich der Dachterrassen wurden die Außenwände mit einem Wärmedämm-Verbundsystem versehen.
Über die Diele gehen im Uhrzeigersinn das erste Schlafzimmer, das zweite Schlafzimmer, das Bad mit Fenster, der Wohn- und Küchenbereich, das Gäste-WC und der Abstellraum ab. Die großzügige nach Norden und nach Osten ausgerichtete Dachterrasse ist über zwei Türen vom Wohnzimmer begehbar und bietet eine Grundfläche von ca. 40 m².
Die Wohnung verfügt über eine neuwertige Einbauküche aus dem Jahr 2023 mit Herd, Cerankochfeld, Kühlschrank, Ablufthaube sowie diversen Hänge- und Unterbauschränken. In den Wohn- und Schlafräumen sowie in der Küche sind neue Vinylböden ausgelegt. Flur, Gäste-WC und Bad sind mit anthrazitfarbenen Bodenfliesen versehen.
Das Bad wurde 2023 komplett erneuert und ist mit einer Dusche und einer Badewanne ausgestattet. Das Gäste-WC wurde dieses Jahr erneuert. Die Vinylböden in den Wohn- und Schlafräumen sowie die Anthrazit-Bodenfliesen wurden auch in diesem Jahr neu verlegt.
Ein separater Keller sowie ein Abtellraum im Flur bieten ausreichend Platz zum Verstauen. Im Badezimmer kann die Waschmaschine angeschlossen werden.
Sonstiges:
- Die Mindestmietdauer beträgt 24 Monate.
- Die Strom- und Wasserkosten rechnet der Mieter mit den jeweiligen Versorgungsunternehmen separat ab.
- Ein Fahrstuhl ist nicht vorhanden.
- Ein TG-Stellplatz kann optional mit angemietet werden.
- Die Wohnung kann auch teilmöbliert angemietet werden. Eine Abstandszahlung für vorhandene Möbel bzw. ein Aufschlag der Nettokaltmiete müsste dann mit dem Vermieter ausgehandelt werden.
- gute Raumaufteilung
- großer Wohn- und Essbereich
- großzügige Dachterrasse (ca. 40 m²)
- Offene Küche mit neuwertiger EBK
- 2 großräumige Schlafzimmer
- Penthouse-Stil
- Neuwertiges Bad mit Badewanne, separater Dusche und Fenster
- Gäste-WC
- Keller
- Abstellraum
- Waschmaschinenanschluss im Bad
- in 30er Zone gelegen (mit div. Parkmöglichkeiten)
- TG-Stellplatz (optional)
Schnelsen ist ein beliebter Stadtteil im Nordwesten von Hamburg. Mit öffentlichen Verkehrsmitteln (AKN oder Bus) gelangt man innerhalb von ca. 25 Minuten in die Innenstadt. Die Bushaltestelle der Linien 184 und 384 befindet sich direkt vor dem Objekt. Mit diesen Buslinien gelangen Sie zur U- und S-Bahn sowie zur AKN. Die Autobahnen A7 und A23 sind in wenigen Minuten zu erreichen.
In der Umgebung finden sich Supermärkte, Schulen, Bäcker und Restaurants. Das Niendorfer Gehege als Freizeitgelegenheit ist ebenfalls schnell erreichbar. Auch der nahe gelegene Krupunder See bietet eine schöne Möglichkeit zur Entspannung bei einem Spaziergang.
Banken, Sparkassen, Ärzte und das Albertinen-Krankenhaus befinden sich nur wenige Fahrminuten vom Objekt enfernt.
Energie mit Warmwasser: Nein
Energieausweistyp: Verbrauchsausweis
Energiekennwert: 80 kWh/(m²*a)
Heizungsart: Zentralheizung
Befeuerung/Energieträger: Erdgas schwer
Baujahr: 1999
Ansprechpartner
Telefax: +49 40 84 07 13 -13
runge@bschulz-immo.de
Energieausweis (Verbrauchsausweis)
80 kWh / (m²*a) Energieverbrauchskennwert
80 kWh / (m²*a) Energieverbrauchskennwert
80 kWh / (m²*a) Energieverbrauchskennwert
Weitere Informationen
| Wesentlicher Energieträger | Erdgas schwer |
| Energieausweis Ausstelldatum | 2017-07-18 |
| Energieausweis gültig bis | 18.07.2027 |
| Energieverbrauch für Warmwasser | nicht enthalten |
| Energieausweis Baujahr | 1999,2025 |
| Energieausweis Gebäudeart | Wohngebäude |
| Heizung | Zentralheizung |
| Befeuerung | Gas |
Ich bin damit einverstanden, dass mir Karten von Google angezeigt werden. Es gelten die Datenschutzbedingungen von Google (https://policies.google.com/privacy).
Ich bin einverstanden