Modernes Wohnen unter dem Dach - Neubau KFW 40 3-Zi-Whg + 30 m² Nutzfläche im DG
Objektart
Adresse
Objektdaten
Informationen
Ausstattung
Details
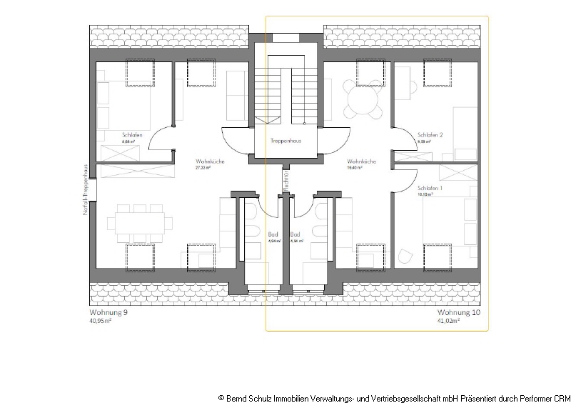
Angeboten wird eine neu errichtete 3-Zimmer-Dachgeschosswohnung im 4.Obergeschoss eines Mehrfamilienhauses mit 10 Wohneinheiten. Das Haus wurde 1937 in massiver Bauweise errichtet. Ein Anbau im Jahr 2025 zur Ecke an der Tischbeinstraße hat das Objekt nördlich an der Giebelseite geschlossen.
Die Dachgeschosswohnung überzeugt durch eine durchdachte Raumaufteilung, eine moderne Ausstattung und eine energieeffiziente Bauweise im KfW-40-Standard. Auf ca. 41,02 m² Wohnfläche erstrecken drei Zimmer sowie das Badezimmer mit Fenster. Der Mittelpunkt der Wohnung ist die helle Wohnküche, die ausreichend Platz für Kochen, Essen und Wohnen bietet. Zudem verfügt die Wohnung über zwei Schlafzimmer.
Die Kombination aus zeitgemäßer Ausstattung, effizienter Energietechnik und cleverem Grundriss sorgt für ein angenehmes Wohngefühl.
Weiterhin gehört zu der Wohnung ein großer Abstellraum im Spitzboden mit einer ca. 30 m² großen Nutzfläche. Dieser Raum ist mit zwei Dachflächenfenstern versehen und kann z.B. für Hobby oder Wäschetrocknen genutzt werden.
Weitere Hinweise:
- Die Mindestmietdauer beträgt 12 Monate.
- Die Stromkosten rechnet der Mieter mit einem Versorger seiner Wahl direkt ab.
- Ein Stellplatz wird nicht mit vermietet.
- Ein Fahrstuhl ist nicht vorhanden.
- gute Raumaufteilung
- Energieeffiziente Bauweise nach KfW-40-Standard
- Fernwärmeheizung
- Wände, Decken und Fußleisten in klassischem Weiß
- Hochwertiger Designboden:
Gerflor Creation 40 "Aquinoah Blond" im Fischgrätmuster
- Moderne Einbauküche inklusive:
Kühlschrank,
Geschirrspüler,
Herd
- Duschbad mit Fenster
Das Objekt befindet sich in einer verkehrsberuhigten Straße im Hamburger Stadtteil Barmbek-Nord.
Die zentrale Lage, die sehr gute Anbindung an die öffentlichen Verkehrsmittel, das vielfältige Angebot an Einkaufsmöglichkeiten sowie die Nähe zum Stadtpark machen diesen Stadtteil besonders attraktiv.
Die U-Bahnstation Barmbek ist nur ca. 800m vom Objekt entfernt.
Energieeffizienzklasse: H
Energieausweistyp: Verbrauchsausweis
Heizungsart: Fernwärme
Baujahr: 1937
Energiekennwert: 271,7 kWh/(m²*a)
Ansprechpartner
Telefax: +49 40 84 07 13 -13
runge@bschulz-immo.de
Energieausweis (Verbrauchsausweis)
271,70 kWh / (m²*a) Energieverbrauchskennwert
271,70 kWh / (m²*a) Energieverbrauchskennwert
271,70 kWh / (m²*a) Energieverbrauchskennwert
Weitere Informationen
| Energieausweis Ausstelldatum | 2024-04-17 |
| Energieausweis gültig bis | 16.04.2034 |
| Energieausweis Werteklasse | H |
| Energieausweis Baujahr | 1937,2026 |
| Energieausweis Gebäudeart | Wohngebäude |
| Heizung | Fernheizung |
Ich bin damit einverstanden, dass mir Karten von Google angezeigt werden. Es gelten die Datenschutzbedingungen von Google (https://policies.google.com/privacy).
Ich bin einverstanden